WOHNUNGEN

KAUFEN

< ZURÜCK ZUR ÜBERSICHT

IMMOBILIENSUCHE

Fassade
Küche mit Fenster
Wannenbad
mit WC
Blick ins Schlafzimmer
Eingang
Sonniger Westbalkon
Balkon zum Innenhof
Keller
ProEigentum - Verkaufen mit Rechtssicherheit
ProEigentum - Immobilien Bewertung mit Zertifikat
< >
KURZEXPOSÉ DRUCKEN

HELL, GEPFLEGT UND CHARMANT: 2-ZI-ETW MIT BALKON IN BEGEHRTER LAGE DER MÜNCHNER AU (Objekt-ID: 11814)

ProEigentum: Hell, gepflegt und charmant: 2-Zi-ETW mit Balkon in begehrter Lage der Münchner Au

81541 München

Entenbachstraße 14

525.000 €

1961

2

1

1

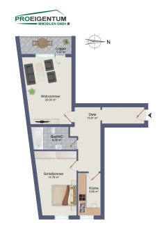
61 qm

ja

01.5.2025

3,57 %

ja

BESCHREIBUNG

Sanierte 2-Zimmer-Wohnung mit Westbalkon in TOP Lage – ideal für Kapitalanleger & Selbstnutzer

Diese charmante 2-Zimmer-Eigentumswohnung aus dem Baujahr 1961 bietet auf 60,61 m² eine angenehme Raumaufteilung, eine gepflegte Ausstattung sowie eine beliebte Ost-/Westausrichtung. Die Wohnung wurde 2003 umfassend saniert und befindet sich in einem sehr gepflegten Zustand.

Eine Mietaufhebungsvereinbarung mit der Mieterin liegt vor – der Auszug erfolgt spätestens am 30.04.2026. Damit eignet sich die attraktive Wohnung sowohl für Kapitalanleger als auch für Selbstnutzer, die ihren künftigen Wohntraum in Ruhe planen möchten.

Ausstattung & Sanierung (2003)

Neue Fenster
Design-Clickböden in grauer Holzoptik
Komplett erneuerte Elektrik inkl. neuer Leitungen, modernem Sicherungskasten & FI-Schalter
Schaltbare Außensteckdose am Balkon
Neue Aluminium-Heizkörper
Weiß lackierte Türen mit neuen Beschlägen

Moderne Küche mit Fenster und funktionaler Ausstattung:

moderne Spüle
Waschmaschine
Kühl-/Gefrierkombination
Dunstabzugshaube

Stilvolles Badezimmer mit zeitlos-eleganten Look:

Wandfliesen in Champagner Ton
Bodenfliesen in warmer Schokofarbe
Badewanne mit klappbarer Glas-Duschabtrennung
WC, Waschtisch, beleuchteter Spiegelschrank
Handtuchheizkörper

Helle Wohnräume & Westbalkon:

Durch die Ost-/Westausrichtung profitieren Sie von Licht zu jeder Tageszeit.
Vom Wohnzimmer aus gelangen Sie direkt auf den Westbalkon mit Blick in den ruhigen Innenhof – ideal für entspannte Abendstunden.

Gebäude & Gemeinschaft

Dach des Gebäudes Ende der 1990er Jahre umfassend erneuert
Zur Wohnung gehört ein Speicherabteil

Fazit

Eine gepflegte, solide sanierte Wohnung in sehr attraktiver Lage – eine gut geschnittene Wohnung als neues Zuhause oder ein wertstabiles Investment mit guter Perspektive für kontinuierliche Rendite.

Interesse?
Bitte geben Sie im Kontaktformular Ihre Telefonnummer an und wir laden Sie gerne zu einer persönlichen Besichtigung ein!

AUSSTATTUNG

Highlights des Wohnambiente

Neuwertige Fenster
Design-Clickböden in grauer Holzoptik
Komplett erneuerte Elektrik inkl. neuer Leitungen, FI-Schalter & modernem Sicherungskasten
Westbalkon zum ruhigen Innenhof
Außensteckdose, bequem von innen schaltbar
Aluminium-Heizkörper, modern & effizient
Weiß lackierte Türen mit neuen Beschlägen
moderne EBK inkl. Kühl-/Gefrierkombination und Waschmaschine
chices Wannenbad mit Handtuchheizkörper
Speicherabteil

GRUNDRISSE

LAGE

Lage – Leben in der Entenbachstraße, in gefragter Lage mitten in der Au

Die Wohnung befindet sich in der Entenbachstraße 14, einer der ruhigen, gewachsenen Wohnlagen der Münchner Au – einem Stadtteil, der seit Jahren zu den beliebtesten innerstädtischen Wohnadressen zählt. Die Au verbindet charmant das traditionelle Altstadtflair Münchens mit urbaner Nähe und einem zugleich entspannten, fast dörflichen Charakter.

Rund um die Entenbachstraße profitieren Sie von:

Kurzen Wegen zu allen Dingen des täglichen Bedarfs – Cafés, Bäckereien, Supermärkte, kleine Fachgeschäfte
Schnellen ÖPNV-Anbindungen in Richtung Giesing, Isarvorstadt und Innenstadt
Nur wenige Gehminuten zur Isar – ideal zum Spazieren, Joggen oder Radfahren
Dem lebendigen Umfeld mit Wirtshäusern, Wochenmärkten und dem typischen Auer Flair
Sehr guter Erreichbarkeit des Müller’schen Volksbads sowie der kulturell geprägten Umgebung am Gasteig

Die Au ist bekannt für ihre hohe Wohn- und Lebensqualität, starke Nachfrage und ihr stabiles Preisniveau – ein Standort, der sowohl für Anleger als auch für Eigennutzer langfristig überzeugt.

ENERGIEAUSWEIS

BAUJAHR DES GEBÄUDES

1961

ENERGIEAUSWEISTYP

VERBRAUCH

AUSSTELLDATUM

2018-01-29

GÜLTIG BIS

28.01.2028

PRIMÄRENERGIETRÄGER

Fernwärme

ENERGIEBEDARF

106 kWh/(m²a)

EFFIZIENZKLASSE

D


ANSPRECHPARTNER

Oliver Grohmann-Velchev


TELEFON ZENTRALE

+49(0) 89 930 83 88 10


E-MAIL DIREKT


EXPOSÉ ANFORDERN

Ihre Anfrage zu:

HELL, GEPFLEGT UND CHARMANT: 2-ZI-ETW MIT BALKON IN BEGEHRTER LAGE DER MÜNCHNER AU
81541 München
Objekt-ID:11814


* Pflichtfelder
Information zur Widerrufsfrist